Stropní systém na bázi lehké lisované dřevoštěpky
Alternativou k tradičním betonovým či keramickým stropním vložkám jsou vložky vyrobené z lehké lisované dřevoštěpky. Vložky se ukládají na předpjaté nosníky vyrobené z betonu C50/60. Díky jejich nízké hmotnosti je montáž tohoto stropního trámkového systému rychlejší a náklady na dopravu nižší (jedna paleta materiálu postačuje na vyhotovení 100 m2 stropu). Nízká hmotnost je rozhodujícím faktorem i při výběru vhodného stropního systému do rekonstruovaných stavebních objektů.
Stropní systém s vložkami na bázi dřevoštěpky představuje novou generaci betonových stropních konstrukcí vhodných pro bytovou a občanskou výstavbu. Samotný stropní systém se skládá z lehkých předpjatých stropních nosníků RS vyrobených z betonu třídy C50/60 (B60) a stropních vložek, které slouží jako ztracené bednění. Stropní vložky jsou vyrobeny z kvalitního, pod vysokým tlakem lisovaného a impregnovaného dřeva.
Kompletní systém doplňuje armovací ocel a armovací síťovina. Stropní systém je použitelný od světlé šířky 1,0 m do 8,0 m. Výška stropu je 16 až 26 cm (v závislosti na rozpětí a zatížení stropní konstrukce), přičemž osová vzdálenost stropních nosníků v systému je 59 cm (nosníky RS 110) nebo 60 cm (nosníky RS 130). Minimální tloušťka betonové zálivky (nadbetonávky) je 4 cm. Při ukládání stropních nosníků se uplatňuje metoda takzvaného jednoduchého ukládání (jeden nosník), dvojitého ukládání (dva nosníky vedle sebe) nebo trojitého ukládání (tři nosníky vedle sebe) v závislosti na zatížení stropní konstrukce. V závislosti na skladbě se hmotnost stropu pohybuje od 187 kg/m2, přičemž minimální spotřeba betonu je 60 l/m2. Zvětšení tloušťky nadbetonávky stropní konstrukce o 1 cm znamená navýšení spotřeby betonu o 0,01 m3/ m2, čímž se zvýší hmotnost stropu o 23 kg/m2.
Železobetonové předpjaté stropní nosníky
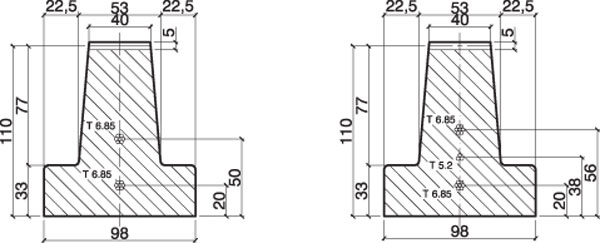
Základním prvkem stropního systému jsou lehké železobetonové předpjaté stropní nosníky RS vyráběné v několika variantách, které se od sebe liší rozměry nosníků v průřezu, počtem a průměrem ocelové výztuže nosníku, respektive rozmístěním prostorové příhradové výztuže v nosníku. Stropní nosníky jsou vyrobeny z betonu třídy C50/60 (B60), který obsahuje přírodní kamenivo. Hlavní výztuž nosníku tvoří ocel s nízkou relaxací třídy 2060, která se vyznačuje vysokou odolností: T 5,2 (3 pruty s ∅ 2,4 mm) a T 6,85 (1 prut s ∅ 2,35 mm + 6 prutů s ∅ 2,25 mm). Nosníky stropního systému se dělí do dvou základních skupin, a to do skupiny nosníků RS 110 (s délkou 1,0 až 6,0 m a výškou 11 cm) a skupiny nosníků RS 130 (s délkou 5,7 až 10,0 m a výškou 13 cm).
Nosníky mají tvar obráceného písmene T (obr. 1 až 3) a vyrábějí se v délkách od 1,0 do 8,0 m v násobcích po 10 cm. Vrchní plocha nosníku má vroubkovaný tvar, který zajišťuje přilnavost k nadbetonávce. V zájmu zabezpečení dostatečného ukotvení ocelové výztuže nosníku v železobetonových věncích je ocelová výztuž vypuštěna z těla nosníku minimálně v délce 8 cm. Stropní nosníky určené pro největší rozpětí jsou dodatečně zesílené prostorovou příhradovou výztuží umístěnou v prostřední části průřezu stropního nosníku.
Obr. 1 Řez stropními nosníky RS 111/112 a RS 113
Obr. 2 Řez stropními nosníky RS 114 a RS 115
Obr. 3 Řez stropními nosníky RS 136 a RS 138
Stropní vložky
Stropní vložky stropních systémů mohou být vyrobeny z vibrolisovaného betonu, keramiky, polystyrenu, plastu nebo z lisovaného dřeva ve formě ztraceného bednění. K výrobě stropních vložek na bázi lisovaného dřeva se používá kvalitní bukové a smrkové dřevo.
Jejich výška je 8,5; 12,5 a 16,5 cm, což odpovídá výšce bednění 12, 16, respektive 20 cm a umožňuje vyhotovit stropy od tloušťky 16 do 26 cm. Šířka stropních výplní (vložek, bednění) je pevně dána a umožňuje uložit stropní žebra v osové vzdálenosti po 59 cm pro skupinu stropních nosníků RS 110 a po 59,5 cm pro skupinu stropních nosníků RS 130. Délka prvků je 120 cm a jejich hmotnost je 5,2 kg, 6,1 kg a 6,4 kg. Výplně jsou vyrobeny systémem pero a drážka (přibližně 6 cm), což značně zjednodušuje montáž, minimalizuje množství odřezů a odpadu. Vrchní část jednotlivých prvků je žebrovaná, krytí síťoviny je zabezpečeno integrovanými podložkami. Každá stropní vložka má předznačené vodicí linie nejčastěji používaných úhlů (300, 450 a 600), což ve významné míře usnadňuje řezání jednotlivých prvků například při potřebě vytvoření úkosů nebo zaoblení.
Výztuž pod příčkami a sloupky
Pod příčky rovnoběžné s osou nosníků se doporučuje použít dva nosníky vedle sebe v takzvaném dvojitém ukládání. V případě příček se zatížením vyšším, než je 2,5 kN/m2, je třeba vykonat důslednou analýzu zatížení a únosnosti stropního žebra. V případech umístění příček:
- kolmo k stropním žebrům – je nutné zohlednit zatížení stropních žeber silami spolupůsobícími v bodech umístění samotné příčky na žebra stropu,
- rovnoběžně se stropním žebrem – pod příčku je třeba navrhnout zesílené stropní žebro; v daném místě se nosník zdvojí (dvojité ukládání) nebo ztrojí (trojité ukládání) nebo se použije jiné vhodné řešení za předpokladu, že na bezprostředně zatížené stropní žebro připadá 50 % hmotnosti příčky a na sousední žebra po 25 % její hmotnosti.
Obdobným způsobem lze analyzovat a vyhotovit vyztužení stropu, na který bodově působí například sloupek konstrukce krovu. V případě nadměrného bodového zatížení působení sloupku na strop bude nevyhnutelné v daném místě zvážit projektování železobetonového nosníku ve formě průvlaku, případně ocelového nosníku obvykle ukrytého ve výšce stropní desky.
Ocelová výztuž a armovací síťovina
Žebírkový stropní systém vyžaduje dodatečné vyztužení v horní části v oblasti podpěr v souvislosti s působením záporných momentů. V případě volného uložení musí být tato výztuž schopna přenést nejméně 0,15 Mo (kde Mo je mezipodporový moment).
V případě stropních žeber v dvojitém, respektive v trojitém ukládání je třeba strop u podpěr vyztužit na záporné momenty vyplývající ze statiky stropního systému, hodnota však nesmí být menší než 0,45 až 0,65 Mo.
V praxi se používá ohnutá výztuž u krajních podpěr a rovné výztuže u středových podpěr (nosníky sousedních polí uložené v témže směru) s průměrem 8 až 14 mm (ve smyslu výpočtu, a to v závislosti na způsobu ukládání nosníků a výšky nadbetonávky) z oceli A III N. Tyto pruty se ukládají po jednom kuse (v některých případech i po dvou kusech) nad koncem každého nosníku a přivážou se drátem z vrchní strany k armovací síťovině. Armovací síťovina i ocelová výztuž jsou neoddělitelnou součástí stropního systému. Armovací síťovina se klade na integrované distanční podložky, které zabezpečují optimální výšku krytí, s přeložením minimální vzdálenosti jednoho oka síťoviny. Uvedená metodika vylučuje potřebu vykonání dělicích žeber, přičemž se s lepším rozložením lineárního a bodového zatížení působícího na strop zvýší pevnost stropní desky. V praxi se nejčastěji používá armovací síťovina s ∅ 4 mm s oky 15 × 15 cm nebo síťovina s ∅ 5 mm s oky 20 × 20 mm.
Ztužující věnce
Na všech zdech obvodových a vnitřních nosných zdech, postavených kolmo na osu, nebo rovnoběžně s osou stropních nosníků se doporučuje vyhotovit stropní věnce. Jejich výška nesmí být menší, než je tloušťka stropu, a jejich šířka musí být minimálně 10 cm. Výztuž věnců se musí skládat nejméně ze čtyř prutů s ∅ 10 mm spojených třmínky z drátu s ∅ 5 mm ve vzdálenostech každých 25 cm. V praxi (pokud neexistují jiná doporučení) se nejčastěji používají čtyři pruty s ∅ 12 mm s třmínky s ∅ 6 mm každých 25 cm.
V případech velkých rozpětí, úzkých nosných zdí nebo zdí vyhotovených z materiálů s nízkou pevností se doporučuje vyhotovit snížení věnce. Snížení věnce musí být minimálně 4 cm od spodní hrany stropní vložky tak, aby byly dolní pruty věnce umístěny pod konce stropních nosníků. V případě použití věnců s výškou rovnající se tloušťce stropu na poměrně úzkých nepřímých stěnách je přípustné použití trapézových nebo trojúhelníkových věnců (obr. 4). Přípustné je i nadezdění horní plochy stěn ze tří vrstev plné cihly nebo vytvořením terčů z cementové malty za účelem jejich zpevnění a vyrovnání. Mimořádně výhodné se zdá být použití betonových nebo keramzit-betonových věncových tvárnic ve tvaru písmene L, které umožňují snížit věnec bez použití dodatečné montážní podpěry a vylučují potřebu bednění věnce. Všechny věnce se musí zalít současně se stropem betonem téže třídy, jakým byla realizována vrstva nadbetonávky.
![]() |
![]() |
| Obr. 4 Příklad věnce a) trapézový, b) trojúhelníkový |
|
Montáž stropu
Ukládání stropních nosníků
Stropní nosníky se ukládají ve smyslu montážního výkresu jeden vedle druhého. Opírají se o protilehlé zdi, bednění průvlaků a montážní podpěry. Při samotném ukládání nosníků na nosné zdi se musí bezpodmínečně dodržet minimální délky ukládání nosníků v závislosti na druhu použitého zdicího materiálu:
- 2 cm – uložené na betonových průvlacích,
- 5 cm – uložené na keramickém zdivu,
- 7 cm – uložené na zdivu z pórobetonu nebo na starším zdivu (rekonstrukce).
Správná osová vzdálenost stropních nosníků se vymezuje uzávěry stropních vložek, které se kladou na konec nosníků.
Umístění montážních podpěr
Před samotným ukládáním stropních vložek je nutné nosníky důkladně podepřít kvalitními montážními podpěrami. V závislosti na konkrétních případech realizace se montuje jedna nebo dvě montážní podpěry. Doporučený průřez pásu podpěry (například dřevěného hranolu) je 7 × 14 cm. Pás se podepře stojkami tak, aby středové navýšení nosníku bylo proti koncům uloženým na zdi (bednění) rovno hodnotě L/500, přičemž L je světlost místnosti (například: světlost místnosti je 500 cm, středové navýšení se potom rovná hodnotě 500/500 = 1 cm). Rozestup podpěr závisí na průřezu pásu podpěry a měl by se pohybovat v rozpětí od 1,2 do 1,8 m.
Ukládání stropních vložek
Po řádném podepření stropních nosníků lze začít s ukládáním stropních vložek. Jako první se položí krajní stropní vložky se stranou zapadající do krycího prvku. Další stropní vložky v řadě se ukládají systémem pero a drážka s přesahem od 1 do 6 cm (vůle při pokládce). Poslední stropní vložka v dané řadě se otočí o 180° tak, aby zapadla do uzávěru stropní vložky (krycího prvku) na druhém konci nosníku. V případě chybějící části, která je menší než samotná stropní vložka, se tato doplní odřezáním vložky na požadovanou vzdálenost, přičemž se řez vede v její horní části. Místo řezu lze regulovat posunem vložek na perodrážce (obr. 5).
Obr. 5 Schéma montáže stropu
1 – Rozloží se krycí prvky, které vymezí osovou vzdálenost nosníků.
2 – Uloží se první krajní stropní vložky stranou zapadající do krycího prvku.
3 – Další stropní vložky se ukládají systémem pero a drážka s přesahem do 6 cm.
4 – Poslední stropní vložka se otočí o 180° tak, aby zapadla do krycího prvku na druhém konci nosníku.
5 – Případné mezery v prostřední části se doplní odřezáním stropní vložky na požadovanou vzdálenost; řez se vede v horní části vložky, přičemž místo řezu lze regulovat posunem vložek na perodrážce.
Ke zkracování stropních vložek se používá pila na dřevo. Zkracování se realizuje ručně nebo mechanicky i po několika kusech najednou. Řezy je třeba vést v horní části výplně, zbytková odřezaná část je vhodná k dalšímu použití, není-li kratší než 20 cm.
V případě osových vzdáleností mezi nosníky menšími, než je standardní osová vzdálenost, se stropní vložka odřeže v jejím podélném směru, přičemž ořezaná hrana se opře do dalšího nosníku v mírném sklonu. Po délce odřezaná stropní vložka se musí opírat na stěně originální (neřezanou) stranou. Otvory ve stropě se realizují dlátem, vrtačkou, přímočarou pilou nebo použitím pily – děrovky.
Vyztužení stropu
Na celé ploše stropu s výjimkou stropních otvorů se rozloží síťovina podle kladačského výkresu (nejčastěji s ∅ 5 mm s oky s rozměrem 20 × 20 cm) se založením minimálně na jedno oko. Síťovina musí zasahovat do věnce alespoň 15 cm. Konec každého stropního nosníku se ukončí u věnce dolů ohnutým kotvicím prutem (roxorem). Sousední pole se spojí rovnými pruty. Výztuž se připevní k armovací síťovině vázacím drátem.
Betonáž stropu
K betonáži stropu se používá beton třídy C20/25 (B25). Betonáž musí být rovnoměrná a nepřerušovaná, přičemž je nutné se vyhýbat nahromadění betonu na jednom místě. V letních horkých měsících je třeba strop před samotnou betonáží navlhčit. Montážní podpěry lze odstranit po dosažení 85 % pevnosti betonu, což je přibližně po třech týdnech.
Podhledový systém
Na vyhotovený stropní systém je možné montovat podhledový systém. Všechny instalace lze ukrýt ve stropní konstrukci. V praxi se dají použít všechny komerčně dostupné systémy upevnění závěsných podhledových systémů, které se připevní nad patku nosníku, do boční části stropního žebra nebo přímo do nadbetonávky (v místě profilovaných žeber panelu). Při montáži ukotvení podhledů je třeba dbát o to, aby se neprovrtaly samotné stropní nosníky.
Víceúčelový stavební objekt v Praze
Stropní systém s vložkami na bázi lehké lisované dřevoštěpky se uplatnil i při realizaci víceúčelového stavebního objektu v Praze (obr. 6 až 9). Ke zhotovení stropu byly použity nosníky s délkou 8,3 m v kombinaci se stropními vložkami RLT 20 (výška vložky 16,5 cm; výška bednění 20 cm). Tloušťka nadbetonávky byla 9 cm.
Obr. 6 Stropní trámkový systém se stropními vložkami na bázi lehké lisované dřevoštěpky polyfunkčního stavebního objektu v Praze
Obr. 7 Rozložení výztuže stropu
Obr. 8 Ocelové pruty výztuže se ukládají po jednom kuse (v některých případech i po dvou kusech) nad koncem každého nosníku a přivážou se drátem z vrchní strany k armovací síťovině.
Závěr
Očekávání trhu se stavebními materiály není jednoduché naplňovat. Stropní vložky vyrobené z lehké lisované dřevoštěpky představují řešení, které je odpovědí na poptávku po alternativních materiálech. Svou nízkou hmotností je stropní systém s uplatněním stropních vložek na bázi dřevoštěpky vhodný i k rekonstrukcím stavebních objektů. Nízká hmotnost zjednodušuje manipulaci a zvyšuje rychlost ukládání, a tedy celé realizace.
TEXT: Ing. Vladislav Mohr
OBRÁZKY a FOTO: RECTOR Česká republika
Ing. Vladislav Mohr je manažer společnosti RECTOR pro Českou republiku.
Článek byl uveřejněn v časopisu Realizace staveb.
















