Zpět na článek
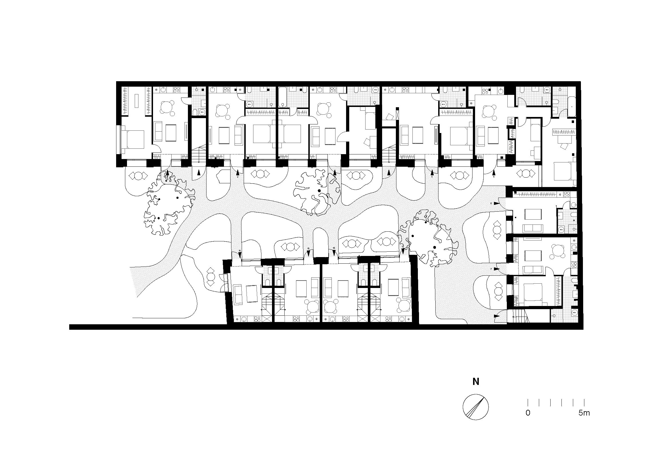
Udržitelné bydlení ve staré továrně: Jak v Lotyšsku rozkvetla moderní zahrada rozkoší
14 / 15
Augustiniánská zahrada
Zdroj: sampling architects