Zpět na článek
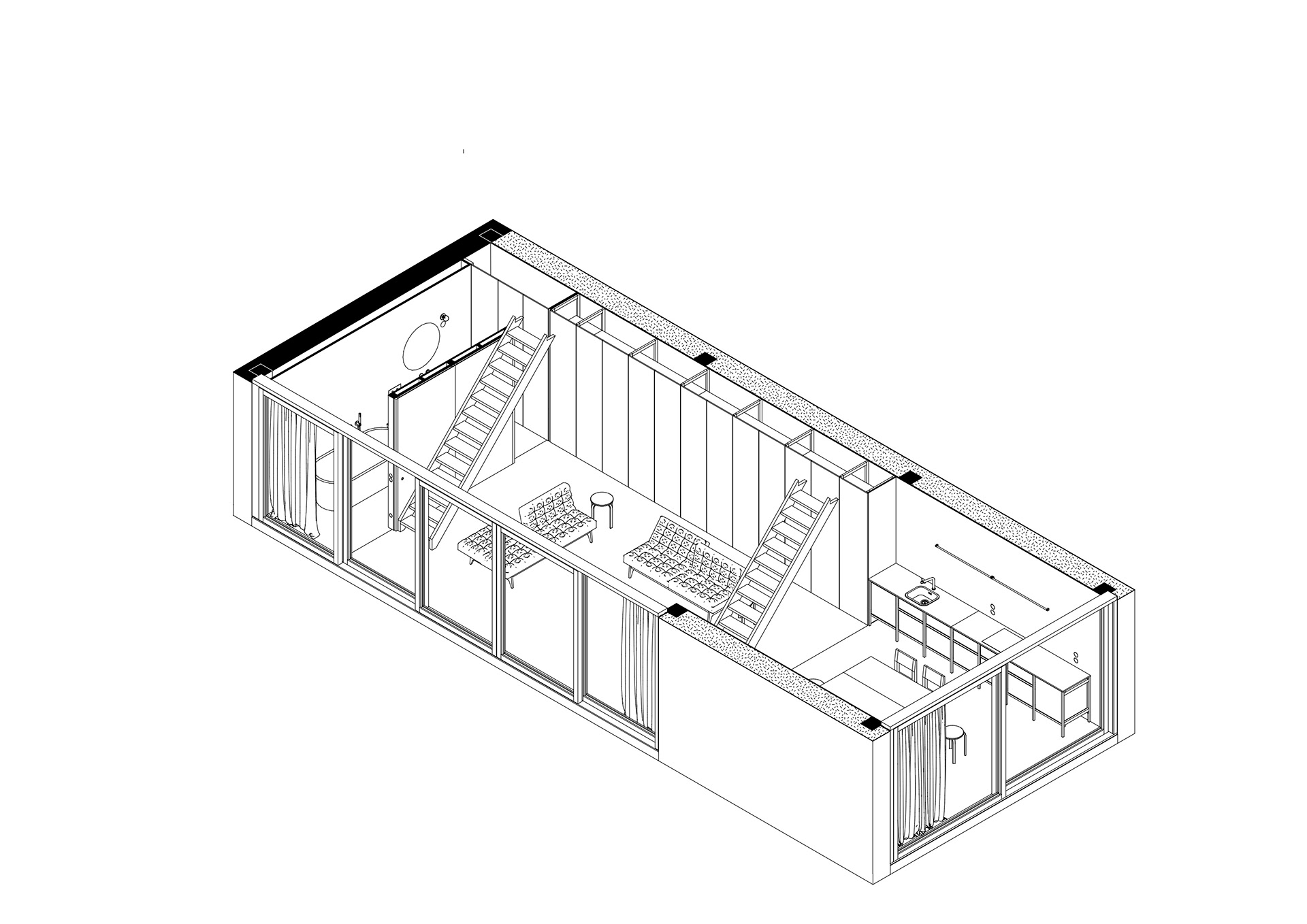
Rodinný dům z konopného betonu zaujal svět architektury
18 / 20
P192 Hempcrete House
Zdroj: Projectroom