Zpět na článek
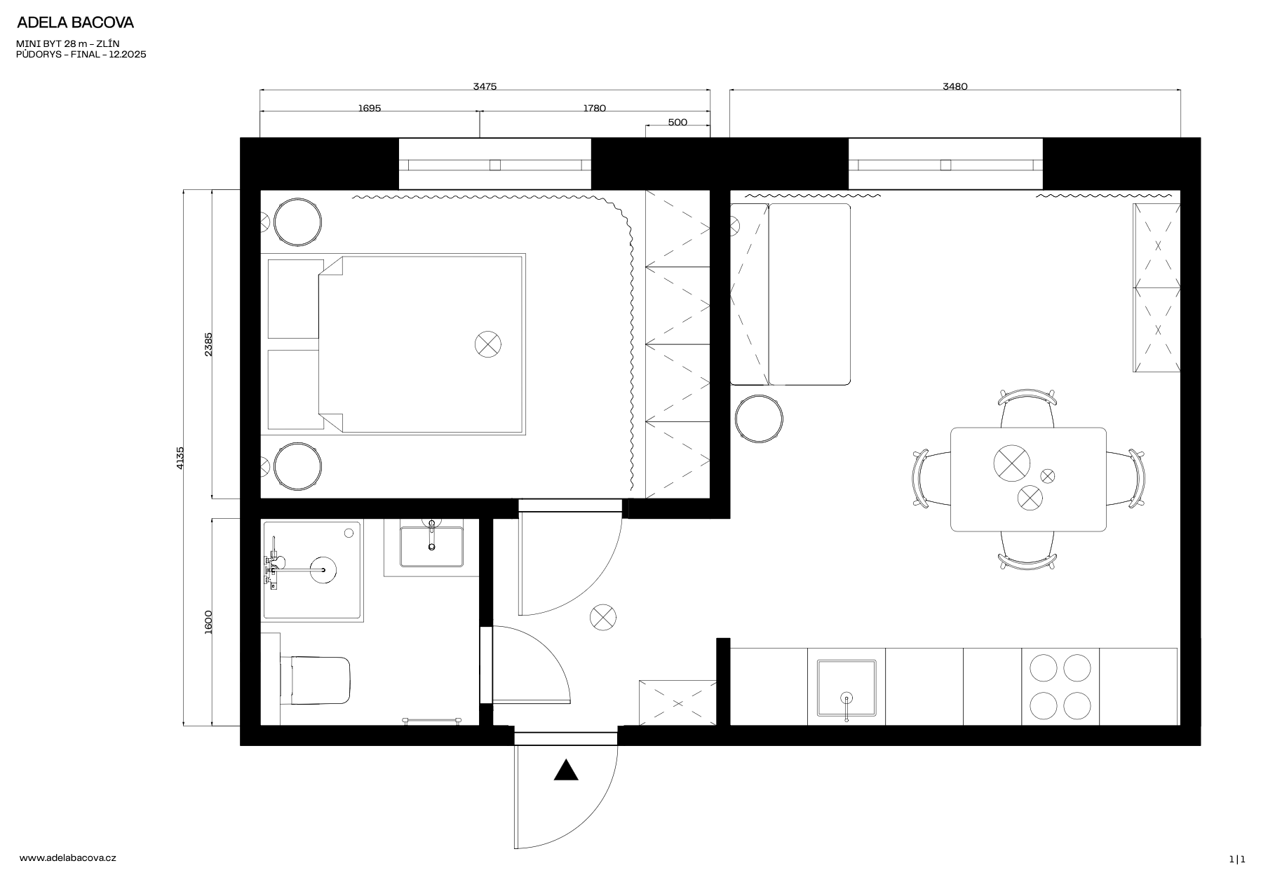
Malý byt s velkými ambicemi. Garsonka ve Zlíně se stala osobitým domovem
11 / 12
Lazy Byt
Zdroj: Adéla Bačová